Hệ thống gas công nghiệp
Hệ thống gas công nghiệp không chỉ đảm bảo nguồn năng lượng ổn định mà còn quyết định sự an toàn và hiệu quả cho nhà hàng. Một hệ thống được thiết kế đúng chuẩn sẽ giúp bạn tối ưu chi phí, giảm rủi ro và nâng cao hiệu suất hoạt động. Cùng Toàn Phát khám phá giải pháp gas công nghiệp hiện đại, giúp bạn yên tâm vận hành và phát triển kinh doanh bền vững!

1. Hệ thống gas công nghiệp là gì?
Hệ thống gas công nghiệp là hệ thống cung cấp khí gas để vận hành các thiết bị bếp công nghiệp như bếp xào, bếp hầm, lò nướng và các thiết bị liên quan. Hệ thống được thiết kế nhằm đáp ứng nhu cầu sử dụng gas lớn trong các nhà hàng, khách sạn, bếp ăn tập thể hoặc khu công nghiệp.

2. Tầm quan trọng hệ thống gas công nghiệp
Hệ thống gas công nghiệp đóng vai trò vô cùng quan trọng trong việc cấp gas cho các thiết bị bếp và đảm bảo an toàn cho nhà bếp công nghiệp.
Hệ thống gas chuyên nghiệp sẽ giúp nhà hàng yên tâm trong quá trình vận hành, đảm bảo nhà hàng được vận hành ổn định, hiệu quả, tối ưu hoá doanh thu cho nhà hàng.
3. Các thành phần chính của hệ thống gas công nghiệp cho nhà hàng

3.1. Kho gas
Được xây dựng riêng so với khu bếp, kho gas cần đảm bảo an toàn và thuận tiện trong việc chứa các bình gas và đổi gas.
3.2. Hệ thống đường ống gas
Là các ống thép đúc được kết nối với nhau bằng các van và hàn kín để đảm bảo an toàn. Các hệ thống này thường được sơn vàng bằng loại sơn chuyên dụng để đảm bảo an toàn.

3.3. Thiết bị điều áp
Đóng vai trò ổn định áp suất gas trước khi chuyển vào hệ thống.
Thiết bị này giúp duy trì dòng gas luôn ở mức an toàn, phù hợp với các thiết bị bếp, tránh tình trạng quá áp hoặc không đủ áp suất.
3.4. Van điều khiển
Cho phép điều chỉnh lưu lượng gas theo nhu cầu sử dụng.
Bao gồm van bi để đóng/mở nhanh chóng và van an toàn giúp ngắt gas tự động khi phát hiện sự cố, mang lại sự an tâm trong quá trình vận hành.
3.5. Đồng hồ đo lưu lượng

Là công cụ theo dõi lượng gas tiêu thụ một cách chính xác. Đồng hồ này hỗ trợ bạn quản lý hiệu quả chi phí nhiên liệu và tránh tình trạng sử dụng lãng phí.
3.6. Thiết bị an toàn
Đảm bảo sự an toàn tuyệt đối với:
- Cảm biến phát hiện rò rỉ gas, cảnh báo ngay khi có dấu hiệu nguy hiểm.
- Van ngắt khẩn cấp giúp dừng hệ thống lập tức, hạn chế tối đa rủi ro.
Từng thành phần trong hệ thống được thiết kế để phối hợp nhịp nhàng, không chỉ mang lại hiệu suất cao mà còn đảm bảo an toàn và tiết kiệm trong quá trình sử dụng.
4. Ưu điểm của hệ thống gas công nghiệp

Hiệu suất cao: Gas công nghiệp cháy hoàn toàn và đều, giúp các thiết bị bếp hoạt động ổn định, tăng hiệu quả nấu nướng trong các giờ cao điểm.
Tiết kiệm chi phí: Giảm 20-30% chi phí gas hàng tháng nhờ hệ thống tối ưu, đặc biệt so với việc sử dụng nhiều bình gas nhỏ lẻ.
An toàn cao: Trang bị thiết bị giảm áp, van an toàn và cảm biến rò rỉ, hạn chế tối đa các rủi ro cháy nổ, bảo vệ người dùng và tài sản.
Dễ dàng vận hành và bảo trì: Thiết kế đơn giản, thuận tiện trong quá trình sử dụng và bảo dưỡng định kỳ.
Tính ổn định: Đảm bảo cung cấp gas liên tục, không gián đoạn trong các giờ cao điểm.
Lắp đặt linh hoạt: Hệ thống gas công nghiệp có thể điều chỉnh thiết kế để phù hợp với mọi không gian, từ bếp nhỏ của nhà hàng đến khu bếp lớn trong nhà máy, đảm bảo tối ưu hiệu suất và diện tích sử dụng.
5. Ứng dụng của hệ thống gas công nghiệp
Dự án hệ thống gas do Toàn Phát thực hiện
- Nhà hàng, khách sạn, bếp ăn tập thể.
- Khu công nghiệp, nhà máy sản xuất thực phẩm.
- Trường học, bệnh viện, và các cơ sở chế biến quy mô lớn.
- Các cây chuyền sản xuất cần nguồn nhiệt liên tục và ổn định.
- Resort, khu nghỉ dưỡng cần nấu nướng và chế biến với khối lượng lớn.
6. Báo giá hệ thống gas công nghiệp cập nhật mới nhất tại Showroom Toàn Phát
Tại Showroom Toàn Phát, chúng tôi cung cấp dịch vụ thiết kế và lắp đặt hệ thống gas công nghiệp với mức giá cạnh tranh, dao động từ 5.000.000 VNĐ đến 30.000.000 VNĐ. Chi phí cụ thể phụ thuộc vào các yếu tố như:
- Loại bình gas sử dụng: Bình gas mới hoặc tái sử dụng.
- Chất liệu đường ống dẫn gas: Inox hoặc thép.
- Quy mô và yêu cầu kỹ thuật của hệ thống.
Để nhận được báo giá chi tiết và phù hợp nhất với nhu cầu của bạn, vui lòng liên hệ với chúng tôi để được tư vấn và hỗ trợ.
7. Sơ đồ lắp đặt hệ thống gas công nghiệp đúng kỹ thuật và tiêu chuẩn

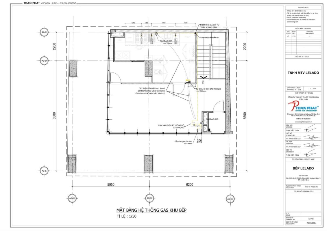
Hệ thống gas tại Bếp Lelado được thiết kế và lắp đặt theo tiêu chuẩn kỹ thuật cao, đảm bảo an toàn và hiệu quả vận hành. Nguồn cung cấp chính kết nối với cụm van điện từ và đồng hồ lưu lượng, giúp kiểm soát và điều chỉnh dòng khí gas một cách chính xác.
Đầu dò báo rò rỉ gas được lắp đặt ở vị trí thấp (H = 150mm), tối ưu khả năng phát hiện khí gas rò rỉ ở khu vực gần mặt đất. Tủ điều khiển báo rò gas được bố trí ở độ cao 1.5m, thuận tiện cho việc giám sát và kiểm soát toàn bộ hệ thống.
Toàn bộ đường ống gas được hàn kín chắc chắn, sử dụng chất liệu chịu áp lực cao và được sơn màu vàng theo tiêu chuẩn kỹ thuật, giúp đảm bảo an toàn tuyệt đối trong quá trình vận hành hệ thống.

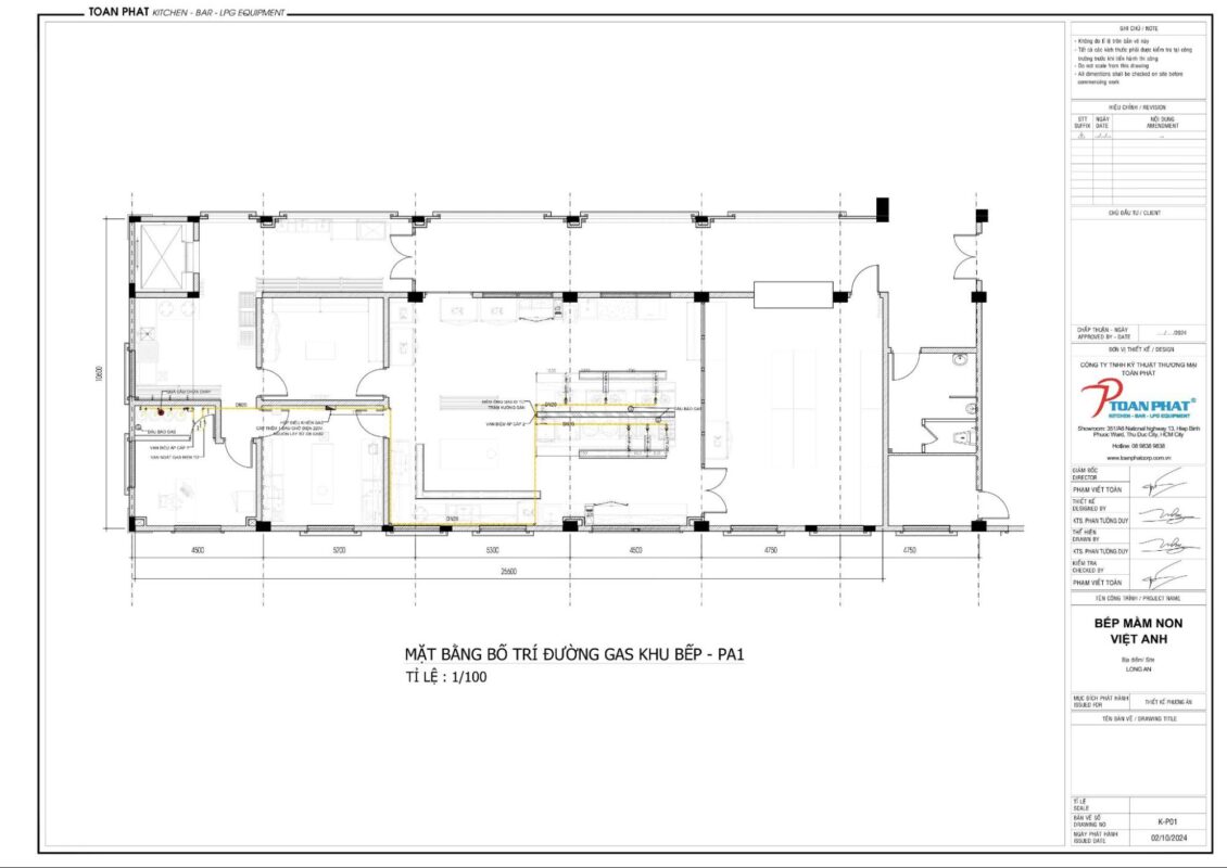
Hệ thống gas công nghiệp tại Bếp Mầm Non Việt Anh được thiết kế với tiêu chuẩn an toàn cao, đảm bảo hoạt động ổn định và hiệu quả.
Đường ống dẫn gas (DN20) được bố trí khoa học, chạy dọc theo trần và tường để tối ưu không gian và đảm bảo an toàn trong quá trình vận hành.
Các thiết bị an toàn như van điều áp cấp 1 và cấp 2 được lắp đặt nhằm duy trì áp suất ổn định, đáp ứng nhu cầu sử dụng liên tục của khu bếp.
Bên cạnh đó, van ngắt khẩn cấp và cảm biến báo rò rỉ gas được bố trí ở các vị trí quan trọng, giúp phát hiện sự cố nhanh chóng và kịp thời xử lý.
Với thiết kế tách biệt và hệ thống thông gió hiệu quả, khu bếp luôn đảm bảo sự thông thoáng và an toàn tuyệt đối cho các hoạt động nấu nướng.
Với quy trình lắp đặt tuân thủ nghiêm ngặt tiêu chuẩn kỹ thuật và đội ngũ chuyên gia giàu kinh nghiệm, Toàn Phát cam kết mang đến hệ thống gas công nghiệp an toàn, bền bỉ và hiệu quả cho mọi mô hình kinh doanh.
8. Quy trình lắp đặt hệ thống gas công nghiệp tại Showroom Toàn Phát
Với hơn 15 năm kinh nghiệm trong lĩnh vực thiết kế và lắp đặt hệ thống gas công nghiệp, Toàn Phát áp dụng quy trình thi công chuyên nghiệp, đảm bảo an toàn, hiệu quả và tuân thủ các tiêu chuẩn kỹ thuật. Dưới đây là các bước cụ thể:

8.1. Tiếp nhận thông tin và tư vấn khách hàng
- Khách hàng cung cấp nhu cầu: Thông qua hotline, email hoặc trực tiếp tại Showroom Toàn Phát.
- Phân tích yêu cầu: Đội ngũ kỹ thuật tư vấn sơ bộ về giải pháp hệ thống gas phù hợp với quy mô và nhu cầu của khách hàng.
8.2. Khảo sát thực tế và đề xuất phương án
- Khảo sát hiện trạng: Kỹ thuật viên tiến hành khảo sát khu vực thi công để xác định vị trí kho gas, đường ống và các thiết bị liên quan.
- Lên phương án lắp đặt: Đưa ra giải pháp thiết kế và thi công tối ưu dựa trên nhu cầu sử dụng và điều kiện thực tế tại công trình.
8.3. Thiết kế chi tiết và lập dự toán
- Bản vẽ thiết kế: Xây dựng bản vẽ chi tiết sơ đồ lắp đặt hệ thống gas, bao gồm:
- Vị trí kho gas và đường ống dẫn.
- Lắp đặt van điều áp, đồng hồ lưu lượng và các thiết bị an toàn.
- Dự toán chi phí: Lập bảng báo giá chi tiết và minh bạch, bao gồm vật tư và công lắp đặt.
8.4. Ký kết hợp đồng và triển khai thi công
- Ký hợp đồng: Sau khi thống nhất thiết kế và chi phí, hai bên tiến hành ký kết hợp đồng thi công.
- Thi công lắp đặt:
- Lắp đặt đường ống gas với chất liệu chịu áp lực cao, hàn kín và sơn vàng theo tiêu chuẩn.
- Lắp cụm van điều áp cấp 1, cấp 2 và đồng hồ lưu lượng để kiểm soát áp suất.
- Lắp đặt các thiết bị an toàn như van ngắt khẩn cấp và đầu dò báo rò rỉ gas.

>>Xem thêm dịch vụ Thi công bồn gas công nghiệp của Toàn Phát
8.5. Kiểm tra, nghiệm thu và bàn giao
- Kiểm tra áp suất: Sử dụng khí Nito để kiểm tra độ kín và áp suất hệ thống.
- Chạy thử nghiệm: Thực hiện chạy thử không tải và có tải để đánh giá hiệu quả hoạt động.
- Bàn giao hệ thống: Hướng dẫn khách hàng vận hành an toàn và cung cấp tài liệu hướng dẫn sử dụng.
8.6. Bảo hành và hỗ trợ sau lắp đặt
- Bảo hành định kỳ: Toàn Phát cam kết bảo hành hệ thống gas công nghiệp theo thỏa thuận hợp đồng.
- Hỗ trợ kỹ thuật 24/7: Đội ngũ kỹ thuật viên luôn sẵn sàng hỗ trợ khách hàng khi gặp sự cố hoặc cần tư vấn thêm.
- Bảo trì và thay thế linh kiện: Thực hiện kiểm tra, bảo dưỡng định kỳ và thay thế các linh kiện đã xuống cấp để đảm bảo hệ thống hoạt động ổn định lâu dài.
Với quy trình lắp đặt bài bản và đội ngũ kỹ thuật viên chuyên nghiệp, Toàn Phát tự hào mang đến cho khách hàng hệ thống gas công nghiệp an toàn, chất lượng cao và đáp ứng mọi nhu cầu sử dụng.
9. Lưu ý khi làm và sử dụng hệ thống gas công nghiệp
9.1. Thiết kế và lắp đặt chuẩn mực

- Đảm bảo các thành phần như van, ống dẫn, và thiết bị điều áp đều đạt tiêu chuẩn chất lượng, phù hợp với nhu cầu sử dụng.
- Lựa chọn đơn vị lắp đặt uy tín, giàu kinh nghiệm để hệ thống vận hành an toàn và ổn định.
9.2. Sử dụng đúng cách
- Thường xuyên kiểm tra hệ thống, đặc biệt là các thiết bị quan trọng như van, đồng hồ đo và đường ống, để kịp thời phát hiện rò rỉ hoặc hỏng hóc.
- Không tự ý sửa chữa khi gặp sự cố, hãy liên hệ ngay kỹ thuật viên chuyên nghiệp để xử lý.
9.3. Bảo trì định kỳ
Bảo trì định kỳ
- Tiến hành vệ sinh và bảo dưỡng hệ thống theo hướng dẫn của nhà sản xuất để duy trì hiệu suất hoạt động.
- Thay thế các linh kiện đã xuống cấp nhằm đảm bảo an toàn và tránh gián đoạn trong quá trình vận hành.
9.4. Hệ thống thông gió hiệu quả
- Đảm bảo khu vực bếp luôn thông thoáng, hạn chế tích tụ khí gas khi xảy ra rò rỉ.
9.5. Trang bị thiết bị an toàn
- Cài đặt cảm biến rò rỉ gas để phát hiện nguy cơ kịp thời và sử dụng bình chữa cháy phù hợp trong trường hợp khẩn cấp.
9.6. Chọn loại gas và nguồn cung cấp đáng tin cậy
- Sử dụng đúng loại gas được khuyến nghị để đảm bảo độ bền và hiệu suất của hệ thống.
- Chọn nhà cung cấp gas uy tín để đảm bảo chất lượng nhiên liệu ổn định và an toàn.
9.7. Kiểm tra áp suất định kỳ
- Theo dõi áp suất trong hệ thống để đảm bảo luôn nằm trong giới hạn an toàn, tránh các nguy cơ như quá áp hoặc thất thoát gas.
10. Showroom Toàn Phát tự hào là đơn vị tư vấn, thiết kế, lắp đặt & cung cấp hệ thống gas công nghiệp hơn 15 năm kinh nghiệm

Với hơn 15 năm kinh nghiệm trong lĩnh vực tư vấn, thiết kế và lắp đặt hệ thống gas công nghiệp, Showroom Toàn Phát tự hào là đối tác đáng tin cậy của hàng ngàn nhà hàng, khách sạn, và bếp ăn công nghiệp trên toàn quốc.
Chúng tôi cam kết mang đến giải pháp tối ưu, đảm bảo an toàn, hiệu quả và đáp ứng mọi nhu cầu của khách hàng, từ những công trình nhỏ đến các dự án lớn, đòi hỏi tiêu chuẩn kỹ thuật cao.
CÔNG TY KỸ THUẬT THƯƠNG MẠI TOÀN PHÁT
Showroom TP. Hồ Chí Minh: 351/A6 Quốc Lộ 13, Phường Hiệp Bình Chánh, TP. Thủ Đức
CN Đà Nẵng: Xã Hoà Châu, Huyện Hoà Vang, Tp Đà Nẵng
CN Hà Nội: Quận Nam Từ Liêm, Hà Nội
CN Phú Quốc: 01, Hùng Vương nối dài, Ấp Gành Gió, Cửa Dương, Phú Quốc
Toàn Phát – Niềm tin – Chất lượng cho từng dự án!
- Hotline: 08 9838 9838 – 0905 91 5679
- Facebook: fb.me/thietbibepnhahang
- Youtube: https://goo.gl/RZut95


