Muốn kinh doanh nhà hàng chay thì yếu tố quan trọng nhất là không gian bếp sao cho hợp lý. Vậy làm sao để thiết kế bếp nhà hàng chay đảm bảo tiêu chuẩn, tối ưu việc ra món mà còn tạo ra sự tiện lợi cho đầu bếp. Và đồng thời, gian bếp còn phải đảm bảo tính thẩm mĩ để tạo sự thu hút cho nhà hàng. Cùng Toàn Phát tham khảo mô hình nhà hàng buffet chay D’GEMMA do Toàn Phát thi công tại Vincom 3/2 này để có cái nhìn chân thực nhất về không gian bếp nhà hàng chay nha!

1. THIẾT KẾ TỐI ƯU KHÔNG GIAN KHU BẾP
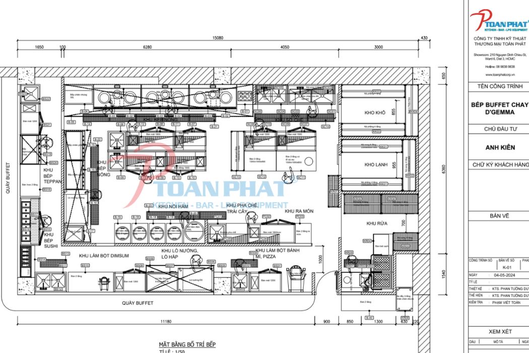
Nhà hàng Buffet chay thường có số lượng món ăn cực kỳ đa dạng. Để đáp ứng khả năng chế biến cho tất cả các món ăn thì không gian bếp cần thoáng, rộng và đầy đủ các thiết bị cho bếp trưởng, bếp phụ,
Toàn Phát đã lên ý tưởng thiết kế, bố trí các phân khu từ khu bếp nóng, khu nồi hầm, khu pha chế, sơ chế trái cây, khu ra món, khu sơ chế, kho khô, kho lạnh, khu rửa, khu bếp nấu các món nước, khu bếp hấp, bếp bánh, đến khu kho, khu rửa chén, khu ra đồ một cách tiện nghi và tiện lợi cho đầu bếp chế biến.
Bên cạnh đó, nhà hàng buffet còn có thêm một line bếp mở bao gồm các phân khu khu làm bánh mì, pizza, khu lò nướng, lò hấp, khu làm bột dimsum, khu bếp sushi, bếp teppan. Tất cả được sắp xếp thẩm mĩ, đẹp mắt, tối ưu không gian cho nhà hàng.

2. PHÂN CHIA KHU VỰC HỢP LÝ
Thông thường, gian bếp công nghiệp sẽ được thiết kế và phân khu theo sơ đồ phù hợp. Khu bếp sẽ bao gồm: khu sơ chế, khu kho, khu bếp nóng, khu ra đồ, khu rửa.
Đối với nhà hàng chay thì ưu tiên vẫn là khu sơ chế thực phẩm. Thực phẩm sau khi sơ chế sẽ được điều phối tới khu bếp nóng, làm chín thức ăn. Quá trình này cần được phối hợp nhuần nhuyễn, thuận tiện để đầu bếp có thể thao tác nhanh và chính xác nhất.
Và tất cả các phân khu đều cần phải được sắp xếp theo mô hình bếp một chiều, để đảm bảo thực phẩm sống/chín không bị chồng chéo lên nhau, đảm bảo an toàn vệ sinh thực phẩm.


3. THIẾT BỊ BẾP CHẤT LƯỢNG, CHẤT LIỆU CAO CẤP
Để có được món ăn ngon và hấp dẫn thì thiết bị bếp cũng là một yếu tố quan trọng. Bên cạnh đó, chất liệu bếp cần làm từ chất liệu inox chất lượng để đảm bảo tính thẩm mĩ và an toàn vệ sinh thực phẩm cho các món ăn.
Với hơn 10 năm kinh nghiệm trong lĩnh vực bếp công nghiệp, Toàn Phát chỉ cung cấp những sản phẩm bếp chất lượng đến từ những thương hiệu uy tín, có tên tuổi trên thị trường như Berjaya, Okinaga, Unox,…
Các thiết bị như bếp Á đôi, bếp Á có bầu nước, tủ hấp cơm, nồi phở, bếp hấp Dimsum, các loại kệ song, kệ phẳng, kệ để bàn,… do Toàn Phát sản xuất cũng đều được sản xuất bằng máy móc hiện đại, đã được kiểm tra kĩ lưỡng trước khi bàn giao cho khách hàng.
Thiết bị inox của Toàn Phát đều được làm từ inox 304 cao cấp, dày dặn, đảm bảo không bị gỉ sét trong môi trường bếp công nghiệp. Chất liệu inox này cũng đảm bảo tiêu chuẩn an toàn vệ sinh thực phẩm của nhà hàng, ít bám bẩn, dễ dàng vệ sinh.



- Xem thêm:
- Bếp Á công nghiệp do Toàn Phát sản xuất
- Nồi phở do Toàn Phát sản xuất
- Bàn lạnh công nghiệp Toàn Phát
4. AN TOÀN VỆ SINH THỰC PHẨM, ĐIỆN, GAS
Kinh doanh nhà hàng nói chung rất chú trọng đến vấn đề an toàn vệ sinh thực phẩm. Đặc biệt không gian nhà bếp cần phải đảm bảo sạch sẽ, bố trí hợp lý để các khu vực không bị chồng chéo lên nhau.
Thiết bị cần làm từ inox chất lượng để hạn chế gỉ sét. Các phân khu như khu rửa, khu sơ chế cần được bố trí riêng biệt để tránh ảnh hưởng đến khu vực bếp nấu. Thiết kế cần phải hợp lý, khoa học để ngăn thực phẩm sống chín chồng chéo lên nhau.
Tiêu chí quan trọng không kém nữa chính là an toàn điện và gas. Toàn Phát với kinh nghiệm thi công gas cho nhà hàng, khách sạn, hệ thống gas cho nhà hàng sẽ đảm bảo cung cấp hệ thống gas chất lượng, đảm bảo an toàn tuyệt đối.
Những thiết bị điện của Toàn Phát cũng được sản xuất trên tiêu chuẩn nghiêm ngặt,, bố trí hợp lý và an toàn cho người sử dụng.

5. THI CÔNG TOÀN BỘ GIẢI PHÁP CHO NHÀ HÀNG: HÚT KHÓI, THOÁT SÀN, BẪY MỠ
Một số nhà hàng chay thường bỏ qua tiêu chí về thiết kế hệ thống thoát sàn, hút khói và bẫy mỡ. Tuy nhiên, đây là nơi tập trung nhiều dầu mỡ, thực phẩm thừa dễ dàng gây tắc cống gây mùi khó chịu nhất. Do vậy, Toàn Phát đã thiết kế hệ thống bẫy mỡ dưới các loại bếp, chậu rửa chén để tránh tình trạng tắc nghẽn. Ngoài ra, hệ thống thoát sàn chất lượng cũng giúp cho quá trình tổng vệ sinh, thao tác trong khu bếp dễ dàng hơn rất nhiều.
Hút khói nhà hàng của nhà hàng chay D’gemma cũng được Toàn Phát tính toán kỹ lưỡng về công suất, cách bố trí, hiệu năng để đảm bảo không gian bếp luôn được thông thoáng, không bị ám mùi lên món ăn.

6. Toàn Phát – Đơn vị thi công bếp nhà hàng chay trọn gói, uy tín
Hiểu rõ những tiêu chuẩn trong thiết kế bếp nhà hàng chay, đặc biệt là tầm quan trọng của khu bếp công nghiệp, bước tiếp theo là tìm kiếm một đơn vị thi công, thiết kế bếp uy tín, chất lượng.
Tiêu chí chọn đơn vị thi công bếp nhà hàng chay uy tín.
Nếu bạn đang băn khoăn không biết tìm đơn vị nào thi công bếp uy tín, chất lượng thì hãy tham khảo những yếu tố sau nhé:
- Đơn vị có nhiều năm kinh nghiệm trong việc thi công bếp nhà hàng, khách sạn, đã từng thi công nhiều dự án tương tự.
- Am hiểu về cách bố trí, thiết kế thi công nhà hàng cũng như những tiêu chuẩn cho bếp công nghiệp
- Chế độ hậu mãi chu đáo, bảo hành bảo trì dài hạn
- Cung cấp sản phẩm chất lượng, có nguồn gốc rõ ràng
- Thi công, lắp đặt, hoàn thiện đúng hẹn, thời gian bàn giao
- Chăm sóc khách hàng tận tình, chu đáo, có nhiều đãi ngộ tốt
- Cung cấp giải pháp toàn diện gồm hút khói, thoát sàn, bẫy mỡ
- Giá cả hợp lý
Toàn Phát – sự lựa chọn hoàn hảo:
Toàn Phát là đơn vị chuyên tư vấn thiết kế, thi công, lắp đặt bếp công nghiệp, bếp nhà hàng, bếp nhà hàng chay chuyên nghiệp, uy tín. Chúng tôi đã thi công cho rất nhiều bếp công nghiệp, bếp nhà hàng, khách sạn trên khắp cả nước. Với hơn 10 năm kinh nghiệm trong nghề, Toàn Phát luôn giữ được sự uy tín – chất lượng và được rất nhiều khách hàng tin tưởng, hài lòng.

Thiết kế bếp công nghiệp – nhà hàng của Toàn Phát luôn đảm bảo nguyên tắc bếp một chiều, đáp ứng các yêu cầu về vệ sinh an toàn thực phẩm phòng cháy chữa cháy giúp khách hàng yên tâm về các hồ sơ thủ tục cấp phép vận hành. Bên cạnh đó còn luôn ưu tiên tối ưu diện tích, công suất, bố trí đúng đủ các thiết bị giúp chủ đầu tư tiết kiệm thời gian, công sức và vận hành nhà bếp hiệu quả.
Toàn Phát còn cung cấp các giải pháp tổng thể từ tư vấn – thiết kế – thi công – bảo hành bảo trì các hệ thống bếp công nghiệp – nhà hàng, hệ thống hút khói, hệ thống gas công nghiệp, hệ thống xử lý dầu mỡ, thoát nước sàn giúp chủ nhà hàng tiết kiệm tối đa thời gian, chi phí, đảm bảo tính đồng bộ, hiệu quả cho nhà bếp.
Toàn Phát có cơ sở vật chất và bộ máy hoàn thiện từ xưởng sản xuất, kho hàng nhập khẩu, showroom trưng bày sản phẩm và cùng đội ngũ nhân sự, chăm sóc khách hàng và kỹ thuật tận tâm, chuyên nghiệp đảm bảo chất lượng sản phẩm cao, giải pháp hiệu quả cho nhà bếp công nghiệp đem đến sự yên tâm cho khách hàng đã tạo dựng nên uy tín và danh tiếng của Toàn Phát trong suốt 10 năm qua.

Toàn Phát cam kết:
– Sản phẩm chất lượng, hiện đại, cập nhật xu hướng
– Hoàn thành công trình đúng tiến độ
– Tư vấn đúng đủ trang thiết bị phù hợp với nhu cầu
– Giá cả hợp lý, phù hợp với ngân sách
– Đội ngũ nhân viên, kỹ thuật chuyên môn cao, trẻ trung, sáng tạo, nhiệt huyết.
Nếu bạn đang tìm đơn vị thi công bếp nhà hàng, bếp công nghiệp, uy tín chất lượng thì hãy liên hệ ngay với Toàn Phát để được tư vấn tận tình và miễn phí

