Trong bất kỳ dự án nào, bản vẽ thiết kế bếp ăn công nghiệp đóng vai trò là nền tảng cốt lõi, giúp xác định mọi yếu tố từ bố trí không gian, hệ thống thiết bị đến quy trình vận hành. Một bản vẽ thiết kế chuẩn không chỉ tối ưu hóa hiệu suất làm việc mà còn đảm bảo các tiêu chuẩn an toàn, vệ sinh và tiết kiệm chi phí với các bếp ăn công nghiệp có quy mô lớn như nhà hàng, khách sạn hay khu công nghiệp.

1. Vai trò và tầm quan trọng của bản vẽ thiết kế bếp ăn công nghiệp
- Tối ưu hóa không gian và quy trình vận hành: Bản vẽ thiết kế giúp xác định vị trí cụ thể cho từng khu vực trong bếp như sơ chế, nấu nướng, vệ sinh, và bảo quản. Điều này không chỉ giúp tiết kiệm diện tích mà còn tạo ra luồng công việc khoa học, giảm thiểu tình trạng chồng chéo hoặc ùn tắc trong giờ cao điểm.
- Đảm bảo an toàn và vệ sinh thực phẩm: Thiết kế bếp công nghiệp đòi hỏi phải đáp ứng các tiêu chuẩn về an toàn phòng cháy, thoát khí, và hệ thống gas. Bản vẽ chi tiết giúp tính toán kỹ lưỡng các yếu tố này, đảm bảo môi trường làm việc an toàn cho nhân viên bếp.
- Tiết kiệm chi phí đầu tư và vận hành: Một bản vẽ chi tiết, khoa học giúp tránh lãng phí trong việc mua sắm thiết bị, tối ưu hóa việc sử dụng năng lượng và nhân lực.
- Tuân thủ quy định pháp luật: Các bếp ăn công nghiệp cần đáp ứng các yêu cầu kỹ thuật, an toàn phòng cháy chữa cháy và vệ sinh an toàn thực phẩm, mà chỉ một bản vẽ thiết kế bài bản mới có thể đảm bảo.
- Nền tảng cho quá trình thi công và vận hành: Bản vẽ thiết kế là cơ sở để triển khai thi công chính xác, đảm bảo công trình đạt chất lượng và đáp ứng nhu cầu sử dụng lâu dài.

2. Bản vẽ thiết kế bếp ăn công nghiệp có lợi ích gì?
Bản vẽ thiết kế bếp ăn công nghiệp là nền tảng giúp tối ưu hóa không gian, giảm sai sót, tiết kiệm chi phí và đảm bảo an toàn. Đây cũng là công cụ hỗ trợ chủ đầu tư và các đơn vị thi công đạt hiệu quả cao nhất.

Tránh sai sót, Phát sinh chi phí trong quá trình thi công lắp đặt
Một bản vẽ chi tiết giúp xác định rõ vị trí lắp đặt các thiết bị, hệ thống điện, nước, và gas, tránh những sai sót không đáng có, hạn chế tối đa các chi phí sửa chữa hoặc điều chỉnh sau khi thi công.
Giúp chủ đầu tư có cái nhìn được tổng thể về khu bếp ăn công nghiệp của mình
Chủ đầu tư dễ dàng hình dung toàn bộ không gian bếp, từ bố cục khu sơ chế, nấu nướng, lưu trữ đến luồng công việc, giúp đảm bảo sự tiện nghi và hiệu quả trong vận hành.
Giúp thời gian thi công nhanh chóng, tiết kiệm chi phí
Khi mọi chi tiết đã được định hình trong bản vẽ, quá trình thi công được thực hiện nhanh chóng và chính xác hơn, giảm lãng phí thời gian và nguồn lực.
Giúp đơn vị dịch vụ thu hút các nhà đầu tư
Một bản vẽ được thiết kế chuyên nghiệp thể hiện sự chuẩn bị kỹ lưỡng và tầm nhìn dài hạn, tạo sự tin tưởng và thu hút các nhà đầu tư tiềm năng.
Giúp các đơn vị dịch vụ chuyên nghiệp dễ trúng thầu dự án hơn
Với một bản vẽ bài bản, các đơn vị thiết kế và thi công dễ dàng gây ấn tượng với khách hàng và đối tác, đặc biệt trong các dự án lớn, từ đó nâng cao cơ hội ký kết hợp đồng và phát triển danh tiếng.
Xem thêm: Bản vẽ thiết kế bếp nhà hàng
3. Xu hướng bản vẽ thiết kế bếp ăn công nghiệp mới nhất
- Thiết kế bếp mở: Phù hợp với nhà hàng cao cấp, quán ăn hiện đại; ưu tiên không gian thoáng, thiết bị thẩm mỹ cao, và sắp xếp hợp lý để khách hàng dễ quan sát quy trình chế biến.
- Tối ưu diện tích: Tập trung vào việc tối đa hóa không gian cho các khu bếp nhỏ; sử dụng thiết bị đa năng, tích hợp nhiều chức năng trong một.
- Ứng dụng công nghệ: Tích hợp hệ thống thông minh như cảm biến nhiệt, điều khiển từ xa; sử dụng phần mềm thiết kế hiện đại như AutoCAD, SolidWorks để tạo bản vẽ chính xác và chi tiết.
- Thiết kế thân thiện với môi trường: Ưu tiên thiết bị tiết kiệm năng lượng, sử dụng vật liệu bền vững, giảm thiểu tác động đến môi trường.

4. Những mẫu bản vẽ thiết kế bếp ăn công nghiệp phổ biến nhất hiện nay
Bản vẽ thiết kế bếp ăn công nghiệp là bước đầu tiên và quan trọng nhất để đảm bảo thành công cho một dự án bếp công nghiệp. Với sự phát triển của công nghệ và kỹ thuật, các mẫu bản vẽ ngày càng được cá nhân hóa, chi tiết và tối ưu hóa để phù hợp với từng loại hình kinh doanh.
Từ các bản vẽ 2D trên AutoCAD đến những mô phỏng 3D trực quan trên SolidWorks, chủ đầu tư có thể dễ dàng hình dung không gian, lựa chọn thiết bị và bố trí hệ thống một cách.
4.1. Các bản vẽ thiết kế bếp ăn công nghiệp mới nhất của Showroom Toàn Phát
Với hơn 15 năm kinh nghiệm, Toàn Phát tự hào mang đến những mẫu bản vẽ thiết kế bếp ăn công nghiệp hiện đại, được cá nhân hóa để đáp ứng mọi yêu cầu cụ thể của khách hàng. Mỗi bản vẽ không chỉ tập trung vào tính tiện ích mà còn đảm bảo yếu tố thẩm mỹ, phù hợp với các loại hình kinh doanh như:
- Nhà hàng, khách sạn: Đề cao tính linh hoạt, bố trí các khu vực nấu nướng và phục vụ sao cho thuận tiện nhất.
- Bếp nhà máy: Tối ưu hóa quy trình nấu nướng và vệ sinh, đảm bảo tuân thủ các tiêu chuẩn an toàn thực phẩm nghiêm ngặt.
- Bếp căn tin trường học: Thiết kế đơn giản, dễ sử dụng, phù hợp với không gian lớn và yêu cầu phục vụ số lượng suất ăn lớn.
Ưu điểm:
- Phần mềm hiện đại: Sử dụng AutoCAD và SolidWorks để tạo ra các bản vẽ chính xác và chi tiết.
- Tư vấn chuyên sâu: Tùy chỉnh bản vẽ dựa trên diện tích, loại hình kinh doanh, và nhu cầu thực tế của từng khách hàng.
- Hỗ trợ toàn diện: Toàn Phát đồng hành từ khâu tư vấn, thiết kế đến thi công và bảo trì lâu dài.
4.2. Các bản vẽ 2D thiết kế bếp công nghiệp trên AutoCAD
Bản vẽ 2D là lựa chọn phổ biến khi cần thể hiện sơ đồ không gian bếp công nghiệp một cách rõ ràng và chi tiết, giúp định hình các yếu tố sau:
- Bố trí thiết bị: Xác định vị trí cụ thể của các thiết bị bếp như bếp nấu, tủ lạnh, kệ inox, bồn rửa, và khu vực vệ sinh.
- Hệ thống kỹ thuật: Hiển thị chi tiết các hệ thống điện, gas, cấp thoát nước, và thông gió. Điều này đảm bảo quá trình thi công diễn ra thuận lợi, tránh các lỗi sai phát sinh.
- Tiện ích: Phù hợp cho các dự án cần triển khai nhanh hoặc không yêu cầu trình bày quá phức tạp.
Ứng dụng thực tế:
- Các nhà hàng nhỏ và vừa yêu cầu tiết kiệm diện tích.
- Các khu bếp tập thể với công suất trung bình.

4.3. Các bản vẽ 3D thiết kế bếp công nghiệp trên solidworks
Bản vẽ 3D mang lại cái nhìn toàn diện và chân thực, giúp khách hàng dễ dàng hình dung không gian thực tế trước khi bắt tay vào thi công. Những chi tiết cụ thể được mô phỏng bao gồm:
- Kích thước chính xác: Mỗi thiết bị được mô phỏng đúng tỷ lệ, giúp tối ưu hóa diện tích và đảm bảo sự hài hòa giữa các khu vực.
- Vật liệu sử dụng: Mô phỏng rõ ràng các loại vật liệu như inox, gạch lát, và hệ thống ánh sáng, giúp dễ dàng lựa chọn phù hợp với không gian.
- Luồng công việc: Hình dung rõ ràng quy trình di chuyển trong bếp, đảm bảo sự liền mạch và hiệu quả trong vận hành.
Ứng dụng thực tế:
- Các dự án bếp lớn như nhà hàng buffet, khách sạn cao cấp.
- Các khu bếp chuyên biệt yêu cầu độ chính xác cao trong thiết kế.
5. Một số mẫu thiết kế bản vẽ bếp ăn công nghiệp theo loại hình kinh doanh
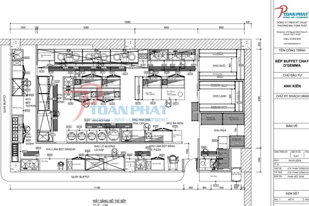
Nhà hàng bếp mở
Thiết kế bếp mở tạo sự kết nối trực quan giữa đầu bếp và thực khách, mang đến trải nghiệm độc đáo. Bố trí không gian gọn gàng, hút mùi hiệu quả, đảm bảo an toàn và thẩm mỹ cao. Các khu vực chế biến được tối ưu hóa, giúp nâng tầm hình ảnh chuyên nghiệp cho nhà hàng.

>>Xem thêm về Dự án bếp nhà hàng chay D’GEMMA
Bếp căng tin
Bếp căng tin được thiết kế để đáp ứng nhu cầu phục vụ suất ăn lớn, đảm bảo vận hành nhanh chóng và hiệu quả. Các khu vực được bố trí liền mạch, tiết kiệm diện tích, tối ưu luồng công việc. Hệ thống vệ sinh và an toàn thực phẩm luôn được đặt lên hàng đầu.

Tiệm bánh và các quán cà phê
Thiết kế cho tiệm bánh và quán cà phê kết hợp giữa thẩm mỹ và công năng sử dụng. Quầy trưng bày bánh và thiết bị làm bánh được bố trí khoa học, thu hút khách hàng. Khu vực làm việc gọn gàng, tạo sự thoải mái cho nhân viên và nâng cao trải nghiệm khách hàng.

6. Lời khuyên khi lựa chọn đơn vị thiết kế bản vẽ bếp ăn công nghiệp
- Ưu tiên đơn vị có kinh nghiệm: Đảm bảo hiểu rõ yêu cầu của từng loại hình bếp và đưa ra giải pháp tối ưu phù hợp với ngân sách và quy mô của bạn.
- Kiểm tra các dự án đã thực hiện: Xem xét các bản vẽ và công trình thực tế mà đơn vị đã thực hiện.
- Đảm bảo tư vấn toàn diện: Đơn vị cần hỗ trợ từ khâu tư vấn, thiết kế đến lắp đặt và bảo trì.
- Ứng dụng công nghệ hiện đại: Chọn đơn vị sử dụng các phần mềm thiết kế như AutoCAD, SolidWorks để tạo bản vẽ chính xác và chi tiết.
- Cam kết về chất lượng:Lựa chọn đơn vị có chính sách bảo hành, hỗ trợ sau lắp đặt rõ ràng và uy tín.

7. Tạm kết
Bản vẽ thiết kế bếp ăn công nghiệp không chỉ đơn thuần là tài liệu kỹ thuật mà còn là công cụ chiến lược để tối ưu hóa chi phí, đảm bảo an toàn và nâng cao hiệu quả vận hành. Với sự hỗ trợ từ bản vẽ, chủ đầu tư không chỉ yên tâm về chất lượng công trình mà còn dễ dàng gây ấn tượng với đối tác và khách hàng.
Nếu bạn đang tìm kiếm một đơn vị chuyên thiết kế và thi công bếp ăn công nghiệp, showroom Toàn Phát chính là lựa chọn hàng đầu. Chúng tôi không chỉ cung cấp các bản vẽ hiện đại, chi tiết mà còn cam kết đồng hành từ khâu tư vấn, thiết kế cho đến lắp đặt và bảo trì.

Hãy để Toàn Phát giúp bạn xây dựng một không gian bếp hiện đại, tiện nghi và chuyên nghiệp!
CÔNG TY KỸ THUẬT THƯƠNG MẠI TOÀN PHÁT
Showroom TP. Hồ Chí Minh: 351/A6 Quốc Lộ 13, Phường Hiệp Bình Chánh, TP. Thủ Đức
CN Đà Nẵng: Xã Hoà Châu, Huyện Hoà Vang, Tp Đà Nẵng
CN Hà Nội: Quận Nam Từ Liêm, Hà Nội
CN Phú Quốc: 01, Hùng Vương nối dài, Ấp Gành Gió, Cửa Dương, Phú Quốc
Toàn Phát – Niềm tin – Chất lượng cho từng dự án!
- Hotline: 08 9838 9838 – 0905 91 5679
- Facebook: fb.me/thietbibepnhahang
- Youtube: https://goo.gl/RZut95

