Tổng hợp các loại bản vẽ bể tách mỡ phổ biến nhất hiện nay
Bể tách mỡ là thiết bị gần như không thể thiếu trong mô hình bếp công nghiệp, dùng để xử lý mỡ thừa, rác thải trước khi nước thải chảy ra thống cống. Tuy nhiên, để thiết bị này hoạt động hiệu quả, lắp đặt đúng kỹ thuật thì yếu tố quan trọng nhất chính là bản vẽ bể tách mỡ.
Vậy bản vẽ này có gì đặc biệt, làm sao để chọn đúng theo nhu cầu? Bài viết dưới đây sẽ cung cấp cho bạn góc nhìn toàn diện từ kỹ thuật đến thực tế triển khai.
1. Tầm quan trọng của bản vẽ bể tách mỡ

Dù là công trình nhỏ hay có quy mô lớn như bếp công nghiệp nhà hàng, khách sạn, bệnh viện, trường học,… thì một bản vẽ thiết kế bể tách mỡ chính xác vẫn luôn cần thiết. Vì sao?
- Đảm bảo đúng kỹ thuật: Bản vẽ thể hiện chính xác kích thước, cấu tạo và vị trí các ngăn tách mỡ, giúp đội ngũ thi công tránh sai sót, lắp đặt sai hướng dòng chảy, gây tắc nghẽn.
- Tiết kiệm thời gian, chi phí: Việc có sẵn bản vẽ giúp giảm thiểu rủi ro sửa chữa hoặc thay đổi khi đã đưa vào vận hành.
- Tối ưu hiệu quả xử lý mỡ: Khi bố trí đúng hướng, đúng cấu tạo, bể sẽ hoạt động trơn tru, hiệu quả xử lý mỡ có thể đạt trên 90%.
- Phù hợp không gian lắp đặt: Tùy theo đặc điểm chậu rửa, độ sâu sàn, không gian âm/nổi, bản vẽ sẽ giúp bạn chọn được kích thước bể phù hợp.
2. Thiết kế bản vẽ bể tách mỡ phụ thuộc 3 yếu tố sau
2.1. Cấu tạo bể tách mỡ

Xem thêm: Bể tách mỡ Toàn Phát
Thông thường bể tách mỡ sẽ có từ 3 – 4 ngăn cơ bản:
- Ngăn lọc rác thô: Nằm đầu nguồn, có rổ lọc giúp giữ lại các vụn thức ăn và rác lớn.
- Ngăn lắng mỡ: Mỡ nhẹ sẽ nổi lên trên, nước nặng hơn sẽ chảy xuống dưới.
- Ngăn chứa nước sạch: Nước đã được tách mỡ sẽ được dẫn ra ngoài cống.
- Vách ngăn: Giúp điều hướng dòng chảy, tránh xoáy, đảm bảo thời gian lắng mỡ đủ lâu.
2.2. Kích thước bể tách mỡ
Kích thước bể tách mỡ phụ thuộc vào công suất bếp, lượng nước xả trung bình mỗi giờ. Dưới đây là bảng thông số bạn có thể tham khảo:
| Loại bếp | Dung tích bể | Kích thước phổ biến |
| Bếp gia đình | 15 – 30L | 400 x 300 x 250mm |
| Bếp nhà hàng vừa | 60 – 100L | 600 x 400 x 350mm |
| Bếp công nghiệp | 150 – 200L | 800 x 500 x 450mm |
2.3. Vị trí đầu vào/ra của bể tách mỡ
Đây là yếu tố ảnh hưởng đến hiệu quả vận hành:
- Đầu vào nên đặt cao hơn đầu ra để tạo chênh lệch áp suất.
- Ống xả đáy nên đặt ở đáy ngăn cuối, giúp dễ xả cặn.
- Ống thông hơi có thể thêm vào để tránh hiện tượng chân không gây trào ngược.
3. Một số yếu tố ảnh hưởng tới chất lượng bản vẽ bể tách mỡ

Không phải bản vẽ nào cũng đạt chuẩn, khi kiểm tra bản vẽ bạn cần lưu ý những điểm sau:
- Trình độ chuyên môn của kiến trúc sư: Người lên bản vẽ thiết kế phải nắm vững được cấu tạo và nguyên lý hoạt động của bể tách mỡ thì mới có thể thiết kế chính xác.
- Độ phức tạp hay đơn giản: Bể tách mỡ càng đơn giản thì quá trình thực hiện càng nhanh và chính xác. Ngược lại, bể càng phức tạp, nhiều chi tiết thì thời gian thực hiện cũng lâu và khó hơn.
- Chất liệu thi công: Inox 304 dày 1.0 – 1.2mm là lựa chọn phổ biến, chống gỉ sét, dễ vệ sinh.
- Vị trí lắp đặt: Lắp nổi hay âm sàn sẽ ảnh hưởng đến việc thiết kế cửa mở, ống thoát.
- Thói quen sử dụng: Nếu xả nhiều dầu mỡ nóng, cần tăng thể tích ngăn lắng và bổ sung lớp bảo ôn.
- Yêu cầu của đơn vị cấp thoát nước địa phương: Một số khu vực yêu cầu dung tích tối thiểu hoặc hệ thống lọc bổ sung.
4. Tổng hợp các bản vẽ bể tách mỡ phổ biến
4.1. Bản vẽ bể tách mỡ gia đình

- Thiết kế nhỏ gọn, dễ lắp dưới bồn rửa.
- Có nắp mở đơn giản và tay cầm tiện di chuyển.
- Đường kính ống nhỏ (Φ34 – Φ48), không cần hàn nối phức tạp.
4.2. Bản vẽ bể tách mỡ nhà hàng
- Dung tích 60 – 100L, bố trí 3 ngăn chuẩn kỹ thuật.
- Có thêm ống thông hơi hoặc ống xả mỡ riêng.
- Thường làm từ inox 304 hoặc thép phủ sơn chống ăn mòn
4.3. Bản vẽ bể tách mỡ công nghiệp lớn

Xem thêm: thi công bếp công nghiệp
- Dung tích từ 150 – 200L, dùng cho bệnh viện, khách sạn, nhà máy.
- Có thể tích hợp tủ điều khiển tự động, cảm biến mực nước, báo đầy.
- Yêu cầu đường thoát nước lớn, khung đỡ chịu tải trọng cao.
5. Cách đọc bản vẽ bể tách mỡ cơ bản cho chủ đầu tư
Dù không phải là kỹ sư chuyên ngành, chủ đầu tư vẫn nên hiểu những yếu tố cơ bản trong bản vẽ bể tách mỡ để nắm rõ thiết kế, kiểm soát chất lượng và giám sát thi công hiệu quả. Dưới đây là hướng dẫn cách đọc bản vẽ dễ hiểu nhất dành cho bạn.
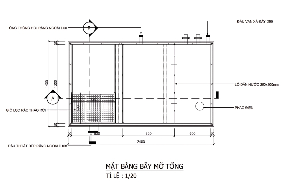
5.1. Nhận biết các mặt bằng trong bản vẽ
Bản vẽ bể tách mỡ thường gồm 3 mặt nhìn cơ bản: Mặt bằng (nhìn từ trên xuống), mặt đứng (nhìn trực diện từ bên ngoài) và mặt cắt (cắt ngang để thấy cấu tạo bên trong). Hãy quan sát kỹ để phân biệt từng mặt, giúp bạn hiểu được tổng thể hình dáng, kích thước và cấu tạo từng khoang.
5.2. Đọc hiểu ký hiệu và chú thích
Trong bản vẽ kỹ thuật, sẽ có nhiều ký hiệu thể hiện đường ống cấp – xã, phễu tách mỡ, nắp bể, vách ngăn,… Bạn cần xem phần chú thích đi kèm để hiểu ký hiệu đó là gì. Ví dụ:
- Φ60: Ống đường kính 60mm
- SS304: Vật liệu inox 304
- D1, D2: Ký hiệu các điểm xả hoặc đầu nối
5.3. Chú ý đến kích thước và dung tích bể

Thông số kích thước (dài x rộng x cao) là yếu tố quan trọng cần phải lưu ý. Nó ảnh hưởng đến dung tích chứa, khả năng xử lý mỡ và phù hợp với không gian bếp bạn đang có. Hãy kiểm tra xem kích thước có phù hợp vị trí lắp đặt thực tế không.
5.4. Xem kỹ cấu tạo các khoang
Một bản vẽ chuẩn sẽ mô tả rõ ràng các khoang trong bể: khoang lắng cặn, khoang tách mỡ, khoang chứa nước sạch. Bạn cần nắm được dòng chảy chất thải từ đâu đến đâu, mỡ được tách ra ở giai đoạn nào, nước ra ngoài qua đường ống nào.
5.5. Kiểm tra hướng lắp đường ống in/out
Đường ống đầu vào và đầu ra có thể đặt bên trái, phải hoặc phía sau tùy thiết kế. Bạn cần đối chiếu với hiện trạng lắp đặt ở bếp để xác định bản vẽ có phù hợp hay chưa hay cần phải điều chỉnh lại.
5.6. Tìm hiểu nắp bể và van xả đáy
Phần nắp bể phải dễ mở để vệ sinh, còn van xả đáy cần bố trí thuận tiện để tháo bã. Trong bản vẽ, các chi tiết này thường thể hiện bằng nét đứt hoặc ký hiệu riêng, đừng bỏ qua vì đây là yếu tố giúp vận hành dễ dàng hơn.
7. Vì sao nên chọn bể tách mỡ tại Toàn Phát

Với hơn 15 năm kinh nghiệm chuyên sâu trong lĩnh vực sản xuất và thi công hệ thống bếp công nghiệp, chúng tôi hiểu rõ từng loại bếp, từng mô hình vận hành để đưa ra giải pháp tối ưu nhất cho từng công trình. Chính vì vậy, bạn hoàn toàn có thể yên tâm khi chọn Toàn Phát là đơn vị cung cấp bể tách mỡ.
- Sản xuất trực tiếp tại xưởng: Sử dụng inox 304 cao cấp, chống gỉ sét, bền bỉ, dễ vệ sinh.
- Cung cấp bản vẽ chi tiết: Dễ đọc, dễ hiểu, phù hợp với mọi đối tượng từ kỹ thuật đến chủ đầu tư.
- Thiết kế linh hoạt theo từng yêu cầu riêng: Từ quán ăn nhỏ, nhà hàng, bếp ăn tập thể đến khách sạn, khu công nghiệp.
- Hỗ trợ khảo sát thực tế, đo đạc tận nơi: Lắp đặt đúng kỹ thuật, đảm bảo hệ thống vận hành mượt mà.
- Bảo hành dài hạn, hỗ trợ hậu mãi chu đáo: Cam kết đúng tiến độ thi công, bàn giao công trình nhanh chóng.
- Giá xuất xưởng, không qua trung gian: Giúp tiết kiệm chi phí tối đa mà vẫn đảm bảo chất lượng cao nhất.
Các loại bể tách mỡ do Toàn Phát cung cấp có dung tích đa dạng từ 15L – 30L – 60L – 100L – 200L và các mẫu thiết kế riêng theo yêu cầu. Hệ thống bể đơn, bể đôi, bể âm sàn, bể lắp nổi linh hoạt theo từng không gian bếp. Thiết kế bản vẽ tỉ lệ chính xác, hỗ trợ phối hợp thi công cùng đơn vị xây dựng.
Gọi ngay hotline: 08 9838 9838 để được tư vấn miễn phí. Đội ngũ kỹ thuật của chúng tôi luôn đồng hành cùng bạn từ khâu lên ý tưởng, bản vẽ, đến lắp đặt và vận hành bể tách mỡ hiệu quả.
8. Lời kết
Việc lựa chọn đúng bản vẽ bể tách mỡ không chỉ giúp bạn đảm bảo hiệu quả xử lý nước thải mà còn tối ưu không gian, tiết kiệm chi phí và dễ dàng vận hành lâu dài. Nếu bạn đang cần bản vẽ chi tiết, thiết bị cao cấp nhưng phân vân không biết đơn vị uy tín thì nào đừng ngần ngại liên hệ với Toàn Phát nhé!
Thông tin liên hệ:
CÔNG TY KỸ THUẬT THƯƠNG MẠI TOÀN PHÁT
Showroom Hồ Chí Minh: 351/A6 Quốc Lộ 13, Hiệp Bình Phước, TP. Thủ Đức.
Hotline: 08 9838 9838 – 09 0591 5679
Toàn Phát – Niềm Tin – Chất Lượng cho mọi dự án!

